(+48) 71 330 43 31 piotr.wysocki.arch@wp.pl

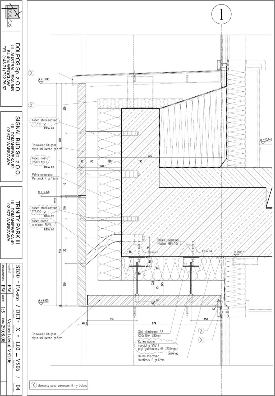
TRINITY PARK III – Warsaw / Poland – 2009

  • Office building built by Ghelamco company (Belgium), with façade made of glass and stone cladding

  • 3500 sqm of Polish Dlugosz sandstone, plinth claddedd with Bianco Cristallino granite, fountain parapet cladded with Impala Black granite

  • Standard grout-in fixings

  • Stone contractor: Dolpos
  • My scope: Designer of stone cladding and its fixings