(+48) 71 330 43 31 piotr.wysocki.arch@wp.pl

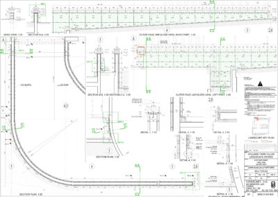
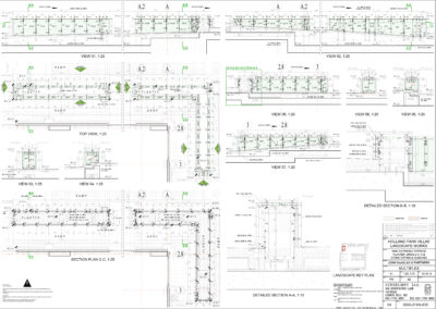
HOLLAND PARK VILLAS – London / UK – 2016

  • Luxury residential block, in one of London’s most exclusive residential districts

  • Main contractor: Multiplex

  • Stone contractor: Szerelmey Ltd

  • Architects: John McAslan + Partners

  • Scope: entire hard landscaping design including wall claddings, steps, copings, planters