(+48) 71 330 43 31 piotr.wysocki.arch@wp.pl

7-8 ST. JAMES SQUARE – London / UK – 2012-2013

  • 7-storey exclusive office building in the historic City of Westminster, made partially by demolition and redevelopment of new building connected to refurbished neighbouring building to create a bigger complex

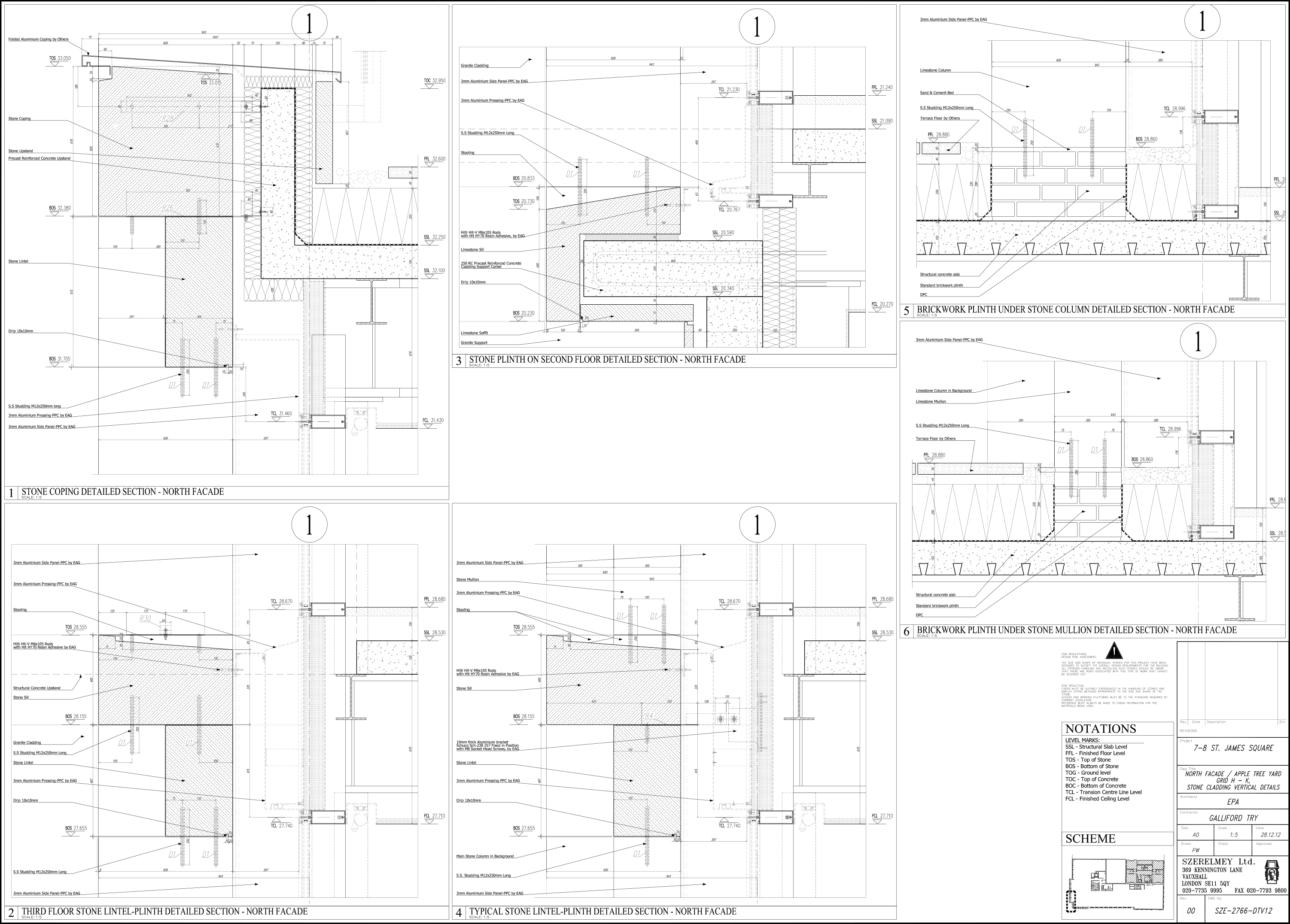
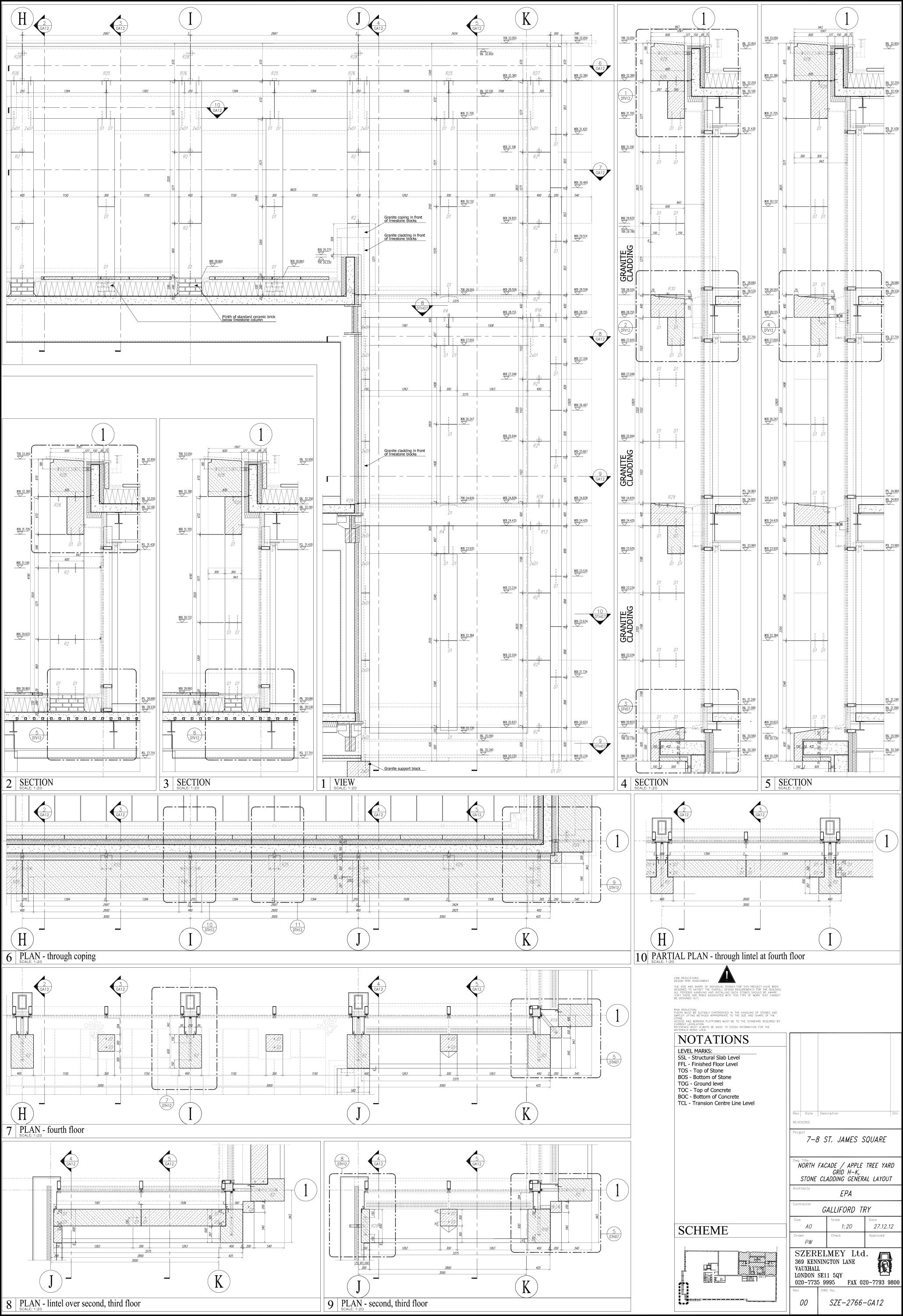
  • Facade made of 60 cm-thick solid stone blocks fixed to steel building structure by means of bespoke fixings

  • Stone contractor: Szerelmey

  • Architect: Eric Parry Architects

  • My scope: complete stone design of two of facades of new building made as a part of Szerelmey design team project